TOPページ
Topics
財団概要
寄附のお願い
アクセス
駐車場・駐輪場
施設紹介
大ホール
小ホール
集会室
会議室
和室
展示室
イベント情報
チケット購入
インターネットで購入
公演一覧
ログイン
新規登録
お電話で購入
窓口で購入
会館ニュース
ぶんか情報館
友の会
(アート・メイツ)
施設利用
を
お考えの方へ
新規利用
施設利用の流れ
申込み方法
抽選会
各種料金
注意事項(PDF)
施設紹介
会議室・練習室
設備
利用料金
図面
第301号会議室
第302号会議室
第303号練習室
第304号会議室
設備
第301号会議室
定員12人
第302号会議室
定員34人
第303号練習室
定員28人
第304号会議室
定員34人
附属設備
附属設備料金表(PDF)
でご確認ください。
利用料金(1時間当たり)
室名
区分
午前9時から午後5時まで
午後5時から午後9時30分まで
第301号会議室
500円
600円
第302号会議室
600円
700円
第303号練習室
500円
600円
第304号会議室
600円
700円
附属設備料金表(PDF)
※ピアノ、プロジェクターなどの附属設備は別料金です。
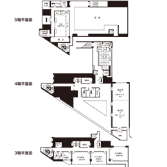
会議室・練習室図面
3・4・5階平面図
(PDF 121KB)
施設紹介TOP
大ホール
小ホール
集会室
会議室・練習室
和室
展示室
空き状況の確認
※ご予約はできません
予約システムの使い方
利用者仮登録の方法(PDF)
空き状況の確認方法(PDF)